Spring til indhold
Tilbage til oversigt over ejendomme
Ledig

Leje

Bolig nr. 33

Sydbjerg 122

kr. 10.700,-

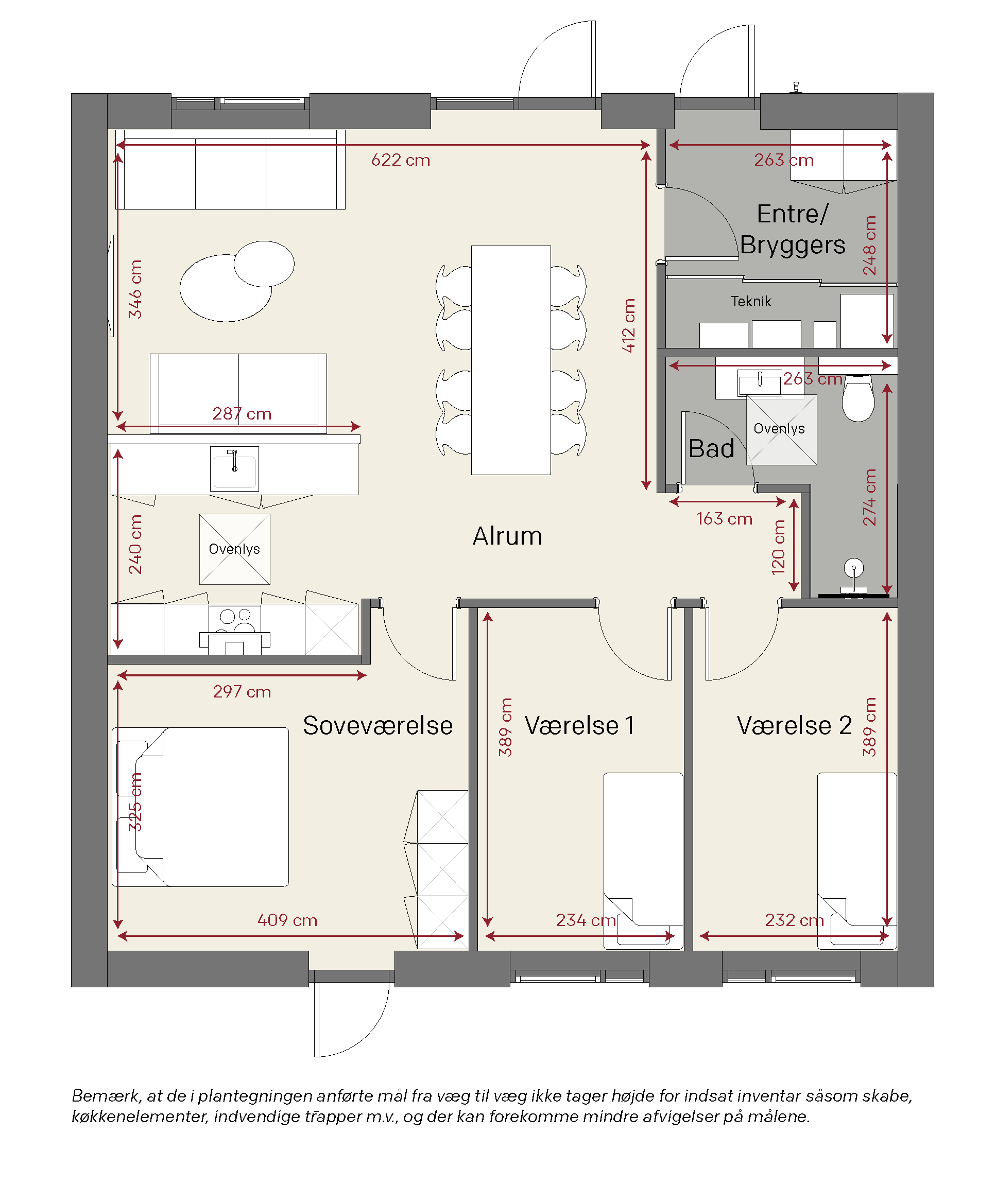
95m²

4 værelser

Vis på kort

Kontakt os

Moderne boliger med udsigt til Kalø Vig

Langkær Bakke byder på moderne og indflytningsklare etplans rækkehuse i naturskønne omgivelser med udsigt over Kalø Vig og Mols Bjerge. Boligerne opføres i høj kvalitet med fokus på funktionalitet, komfort og stilrent design. Her forenes moderne byggeri med en rolig beliggenhed, hvor naturen spiller hovedrollen, og alle hverdagens nødvendigheder findes i nærområdet.

Boligområdet består af 80 boliger fordelt på fem forskellige boligtyper fra 88 til 114 m² og 3-4 værelser. Hver bolig er opført med gennemtænkte løsninger og indeholder blandt andet åbent opholdsrum, stort køkkenalrum, gode værelser samt terrasse og privat parkering. Ideelt for par, børnefamilier og seniorer.

Langkær Bakke kombinerer det bedste fra to verdener med et fredeligt og grønt nabolag i naturskønne omgivelser, og moderne boliger opført med fokus på kvalitet og funktionalitet.

Detaljer

Sagsnummer

80561433

Adresse

Sydbjerg 122

Salgsform

Leje

Ejendomstype

T3

Størrelse

95m²

Værelser

4

Månedlig husleje

kr. 10.700,-

Depositum

kr. 32.100,-

Status

Ledig

Dato tilgængelig

01-09-2026